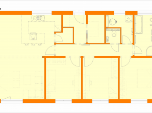
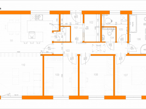
Largo 129 - atypický bungalov pro mladou rodinu
Máme pro vás zajímavý bungalov s celkovou podlahovou plochou 108m² za skvělou cenu.
Součástí dipozice je koupelna a samostatný záchod, šatna u vstupu, spižírna, tři velké pokoje a rozlehlá kuchyň s obývákem. Pokud vás tento dům zaujal, rádi vám ho na vzorovém domě upravíme dle vašich představ.
Více podrobností k domu Largo 129 naleznete ZDE.


















































