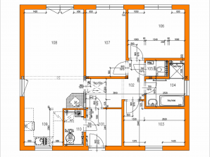
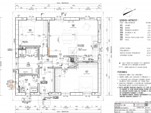
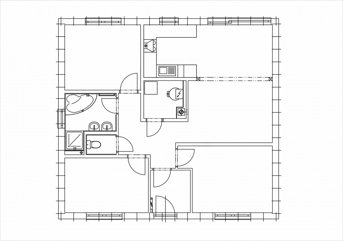
Bungalov 83 V
Jednopodlažní rodinný dům v provedení 4+1. Svou cenou se vyrovná ceně stejně velkých bytů.
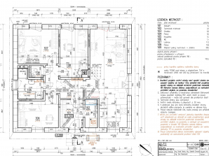
Jednoduchý čtvercový půdorys činí z domu Largo 98 velmi variabilní stavbu. Dům si přizpůsobíte dle dispozic své parcely. Doporučujeme umístit okna obývacího pokoje na jih, abyste si mohli i v zimě užívat energie ze slunečních paprsků. Francouzské okno vedoucí z obýváku vybízí ke stavbě venkovní terasy, na které si vždy odpočinete.
Dodávka vybavení na klíč obsahuje:
- valbová střecha se sklonem 25°
- v ceně domu základová deska a doprava
- tepelné čerpadlo vzduch/vzduch s možností vytápění nebo chlazení interiérovými splitovými klimatizačními jednotkami
- elektrické nástěnné přímotopné panely bez centrální regulace
- třífázový fotovoltaický systém o výkonu cca 2,7 kWp s hybridním střídačem
- obvodové stěny s vnitřní izolací 120 + 40 mm a vnější termofasádou 150 mm uzavřenou strukturní barevnou omítkou
- betonová střešní krytina včetně anténní tašky
- vnější dřevěné díly natřené lazurovou barvou dle vzorníku
- okapy z titanozinku
- venkovní nezámrzný zahradní ventil
- zateplený poklop se schůdky na pochozí půdu
- laminátová podlaha nebo koberec v obytných místnostech, v ostatních místnostech dlažba
- obklady v koupelně a na WC do výše dveří
- elektroinstalace od skříně domovního rozvaděče včetně dodávky domovního rozvaděče, v místnostech jsou zabudovány zásuvky a vypínače bílé barvy
- ventilátor s hygrostatem v místnostech s vanou nebo sprchou
- instalace slaboproudu - zvonek od domovních dveří, zásuvka pro kabelové připojení TV včetně kabelového rozvodu v domě
- sanitární vybavení - umyvadlo ze sanitární keramiky v bílé barvě se směšovací pákovou baterií, umývátko ze sanitární keramiky v bílé barvě se směšovací pákovou baterií, vana s pákovou baterií a se sprchovou hadicí a růžicí, sprchový kout včetně baterie se sprchovou hadicí a růžicí a kombinované WC
- přípojka pro pračku
- přípojka pro myčku
- ohřev teplé vody pomoci zásobníku 200 l
- malířské práce - stěny a stropy upraveny zednickou stěrkou stupně kvality povrchu Q2, bílá malba
- kuchyňské přípojky vody, odpady a elektro v rozsahu dle typové obchodní dokumentace
- rozvody vody potrubí Alpex, kanalizace z plastových trubek
- požární bezpečnost - zařízení autonomní detekce a signalizace
- okna a terasové dveře vyrobené ze 7-mi komorových PVC profilů v bílé barvě s izolačním trojsklem, součinitel prostupu tepla celého okna Uw ≤ 1,0 W/(m².K)
- vnitřní dýhované dveře v provedení plné s obložkovou zárubní a protihlukovým průběžným gumovým těsněním
- dveřní kování dvoudílné rozetové
- vchodové domovní dveře v provedení masiv nebo z 5-ti komorových PVC profilů v bílé barvě se třemi závěsy a pětinásobným uzávěrem









































































