Vzorový dům Bungalov 97
Představujeme vám dům pod označením BUNGALOV 97.
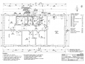
Na zastavěné ploše 120 metrů čtverečních (15,3 x 7,8m) najdete 98 metrů podlahové plochy a především dispozici 5+kk. Dům má sedlovou střechu se sklonem 30 stupňů.
Nebojte se nás oslovit a my tento dům uzpůsobíme vašim požadavkům a představám. Už teď se můžete podívat na několik zajímavých dispozičních variant.
Tento dům naleznete ZDE jako vzorový v Kratochvilce.
                                                































