Tak trochu více jiný Kubis

Podívejte se na zdařilou realizaci domu dle individuálního návrhu.

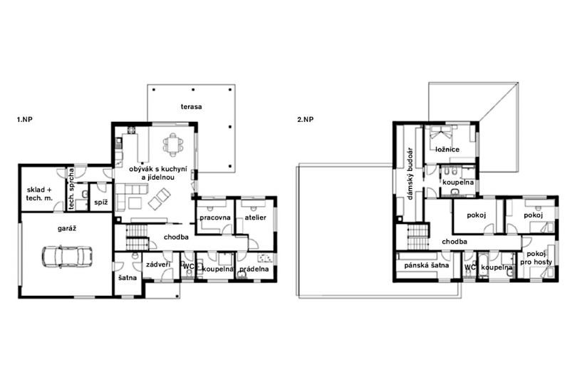
Zastavěná plocha: 221,60 m2
Užitná plocha: 244,94 m2

Napište nám
Jméno*
Email*
Telefon
Lokalita*
* Povinné položky